Boele van Hensbroekstraat 42

2522HM Den Haag
Verkocht

Omschrijving

Kopers opgelet!
Bent u op zoek naar een betaalbare eengezinswoning in een leuke woonwijk gelegen, dan bent u hier aan het juiste adres.
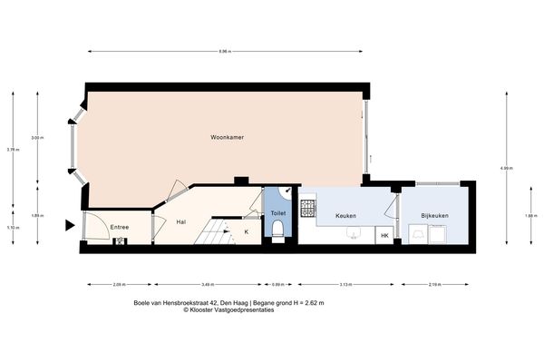
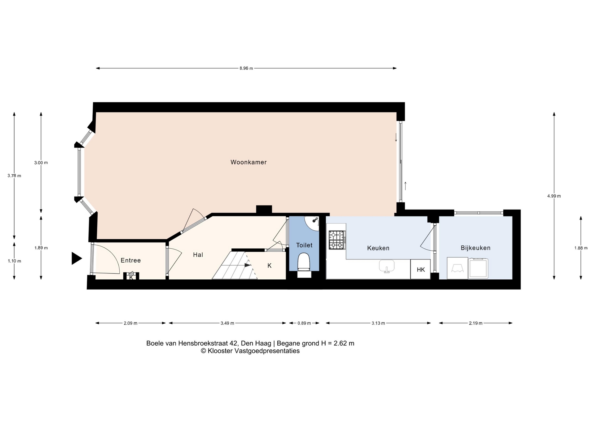
De woning is voorzien van maar liefst 5 kamers (4 slaapkamers), een nette badkamer en keuken, voor-en achtertuin en voldoende lichtinval.

De woning is gelegen in de wijk Laakkwartier, op de grens van oud Rijswijk, op loopafstand van winkels, scholen openbaar vervoer en ook de uitvalswegen zijn in de directe omgeving.

Kom gerust langs en ervaar het zelf.
Lees meer

Kenmerken

Overdracht

Aangeboden sinds
26 juni 2025
Status
Verkocht
Aanvaarding
In overleg

Bouw

Soort woning
Woonhuis
Soort woonhuis
Eengezins woning
Type woonhuis
Tussenwoning
Bouwjaar
1934
Soort dak
Zadeldak

Oppervlakten en inhoud

Oppervlakte wonen
125 m²
Oppervlakte gebouwgebonden buitenruimte
1 m²
Perceel
93 m²
Inhoud
441 m³

Indeling

Aantal kamers
5
Aantal slaapkamers
4
Aantal woonlagen
1 woonlaag

Energie

Energielabel
D
Isolatie
Dubbel glas
Verwarming
Warmtepomp
Warm water
Cv-ketel
Cv-ketel
, eigendom

Buitenruimte

Tuin
Achtertuin en voortuin

Locatie

Ook jouw woning succesvol verkopen?

Neem dan contact op

Gratis waardebepaling