Boendalestraat 49

2531XK Den Haag
Verkocht

Omschrijving

Bent u op zoek naar een betaalbare eengezinswoning in een leuke omgeving? Dan bent u hier aan het juiste adres.
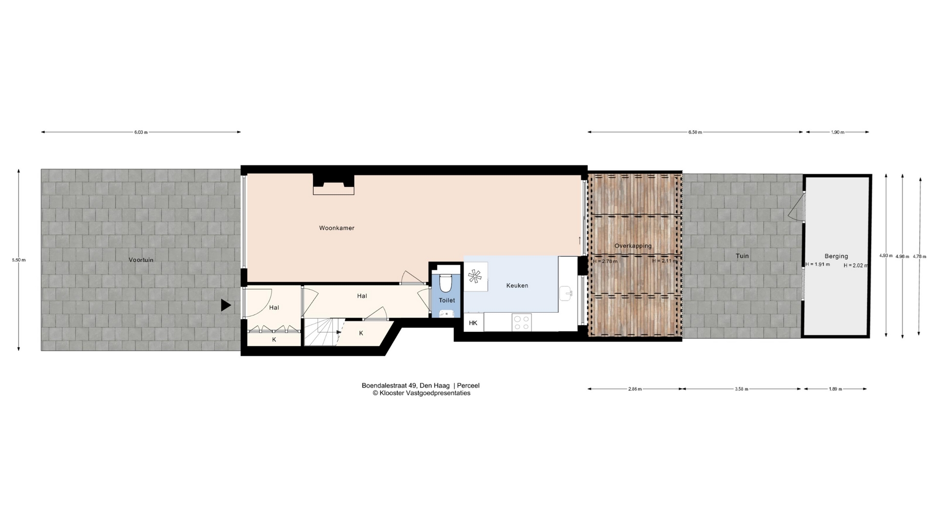
Deze 4 (voorheen 5) kamer tussenwoning is voorzien van ruime woonkamer met open haard, moderne keuken, 3 ruime slaapkamers en een verzorgde voor-en achtertuin.
De woning is zeer centraal gelegen en op loopafstand van het Zuiderpark, maar ook winkels, scholen en openbaar vervoer zijn in de direct omgeving te vinden.
Lees meer

Kenmerken

Overdracht

Aangeboden sinds
10 november 2024
Status
Verkocht
Aanvaarding
In overleg

Bouw

Soort woning
Woonhuis
Soort woonhuis
Eengezins woning
Type woonhuis
Tussenwoning
Bouwjaar
1937
Soort dak
Zadeldak

Oppervlakten en inhoud

Oppervlakte wonen
113 m²
Oppervlakte gebouwgebonden buitenruimte
18 m²
Oppervlakte externe bergruimte
9 m²
Perceel
125 m²
Inhoud
395 m³

Indeling

Aantal kamers
4
Aantal slaapkamers
3
Aantal woonlagen
1 woonlaag
Voorzieningen
Schuifpui

Energie

Energielabel
D
Verwarming
Cv-ketel en open haard
Warm water
Cv-ketel
Cv-ketel
, eigendom

Buitenruimte

Tuin
Voortuin en achtertuin
Achtertuin
41 m² gelegen op het zuidwesten

Bergruimte

Schuur/berging
Vrijstaand steen
Voorzieningen
Voorzien van elektra

Locatie

Ook jouw woning succesvol verkopen?

Neem dan contact op

Gratis waardebepaling