Herderslaan 21

2526KL Den Haag
Verkocht

Omschrijving

Betaalbaar willen wonen in een eengezinswoning, het bestaat nog!
Deze 4 kamer eengezinswoning is gelegen in een gezellige straat met betrokken buren in de levendige Schilderswijk, op slechts 5 minuten lopen van het centrum van Den Haag. De Haagse Markt ligt eveneens op loopafstand, opstapplaatsen van de tram liggen om de hoek en het Centraal Station, Station Holland Spoor en de snelweg, zijn in ca. 10 minuten fietsen te bereiken.
Lees meer

Kenmerken

Overdracht

Aangeboden sinds
19 augustus 2025
Status
Verkocht
Aanvaarding
In overleg

Bouw

Soort woning
Woonhuis
Soort woonhuis
Eengezins woning
Type woonhuis
Tussenwoning
Bouwjaar
1893
Soort dak
Zadeldak

Oppervlakten en inhoud

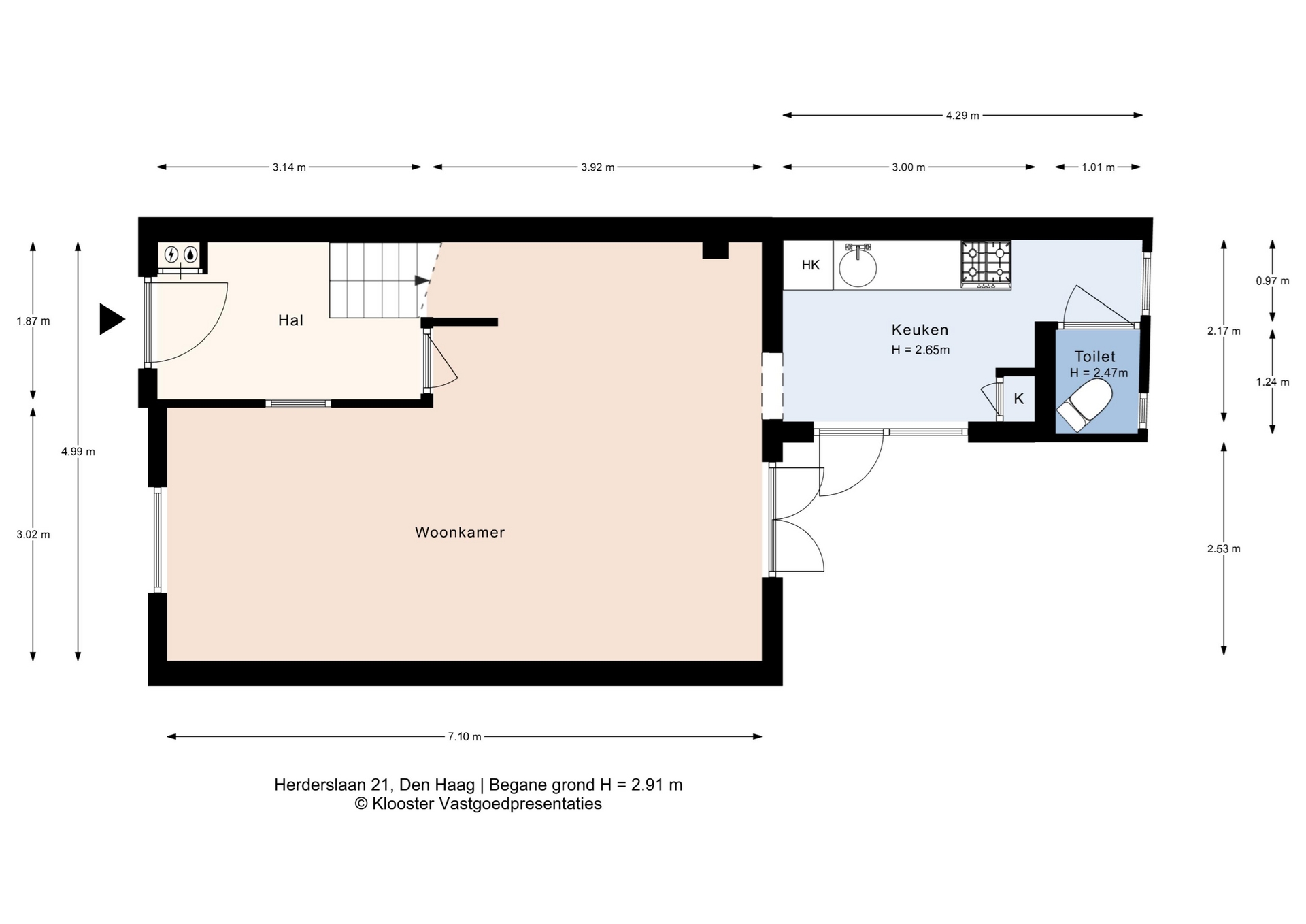
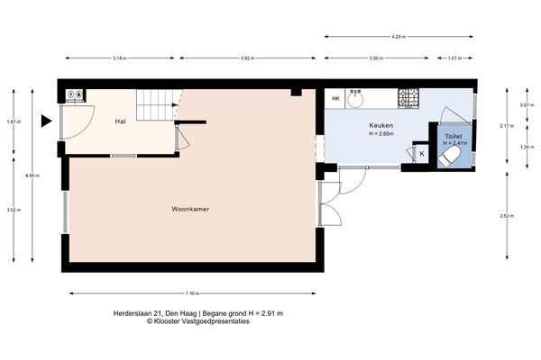
Oppervlakte wonen
88 m²
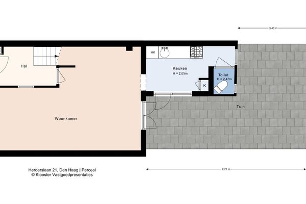
Perceel
79 m²
Inhoud
365 m³

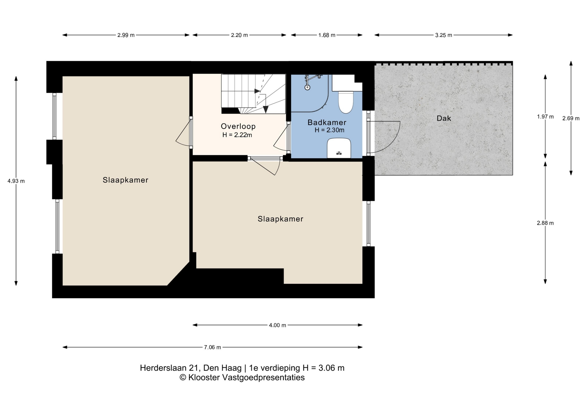
Indeling

Aantal kamers
4
Aantal slaapkamers
3
Aantal woonlagen
1 woonlaag

Energie

Energielabel
E
Isolatie
Dubbel glas
Verwarming
Cv-ketel
Warm water
Cv-ketel
Cv-ketel
, eigendom

Buitenruimte

Tuin
Achtertuin
Achtertuin
17 m²

Locatie

Ook jouw woning succesvol verkopen?

Neem dan contact op

Gratis waardebepaling