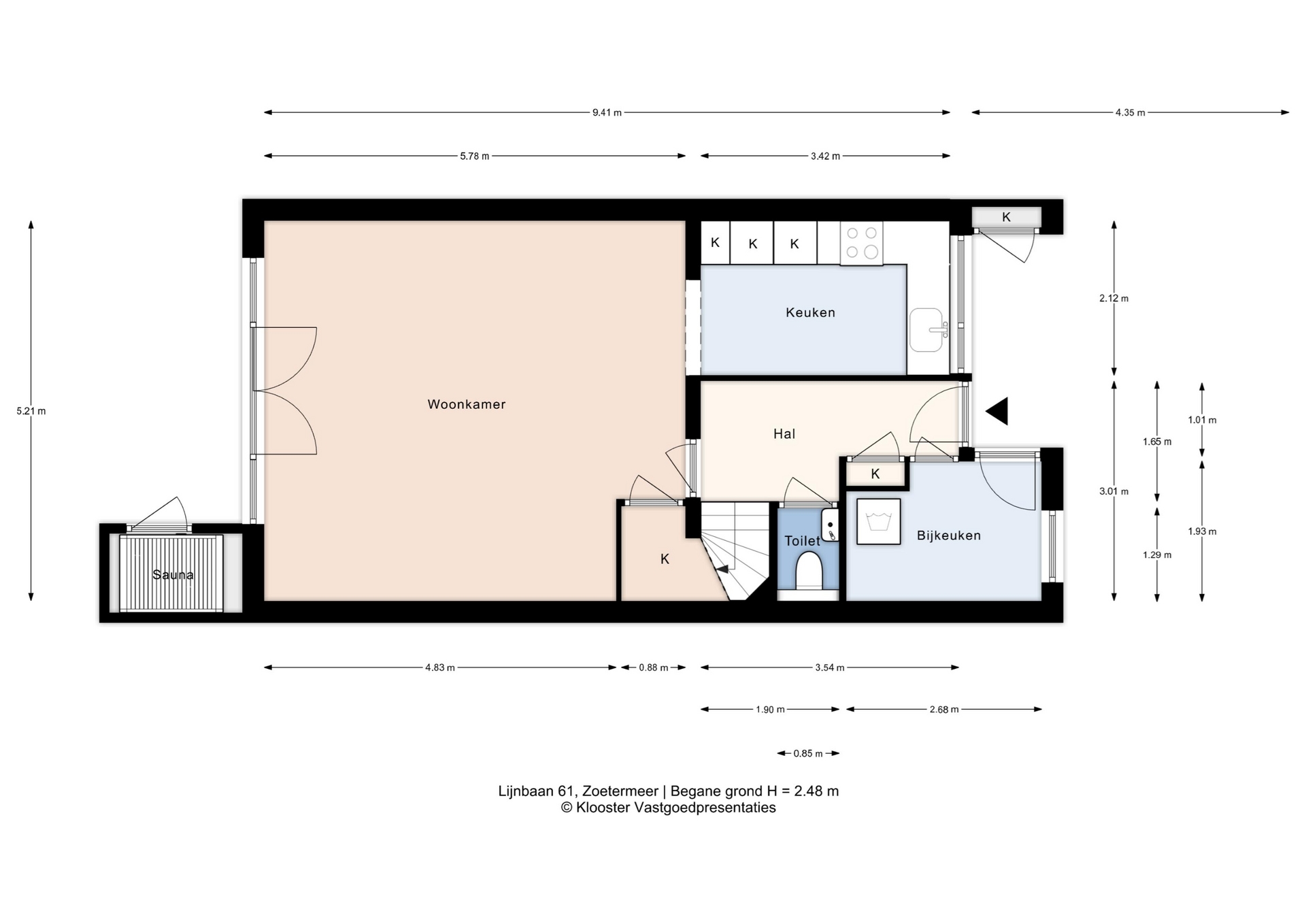
Lijnbaan 61

2728AB Zoetermeer
Verkocht

Omschrijving

Kopers opgelet!
Bent u op zoek naar een betaalbare instapklare eengezinswoning, stop dan met zoeken, u heeft zojuist een parel gevonden.
Deze 5 kamer tussenwoning is zeer goed onderhouden en voorzien van moderne keuken (geplaatst in 2023), keurig nette badkamer, grote achtertuin en mogelijkheid tot het plaatsen van een opbouw
De woning is gelegen in de gewilde en zeer groene wijk Noordhove. ’s Avond zin in een blokje om? Binnen enkele minuten loopt u zo het Noord AA op, Boerderij ’t Geertje op fietsafstand maar ook het recreatie gebied in het algemeen vergroot enorm uw woongenot. Tevens heeft u de winkels, scholen en openbaar vervoersmogelijkheden binnen handbereik.

Kom gerust langs en ervaar het zelf!
Lees meer

Kenmerken

Overdracht

Aangeboden sinds
25 augustus 2025
Status
Verkocht
Aanvaarding
In overleg

Bouw

Soort woning
Woonhuis
Soort woonhuis
Eengezins woning
Type woonhuis
Tussenwoning
Bouwjaar
1986
Soort dak
Plat dak

Oppervlakten en inhoud

Oppervlakte wonen
106 m²
Oppervlakte overige inpandige ruimte
2 m²
Oppervlakte gebouwgebonden buitenruimte
12 m²
Perceel
127 m²
Inhoud
365 m³

Indeling

Aantal kamers
5
Aantal slaapkamers
4
Aantal woonlagen
1 woonlaag

Energie

Energielabel
A+
Isolatie
Dubbel glas
Verwarming
Cv-ketel
Warm water
Cv-ketel
Cv-ketel
Vaillant (, eigendom)

Buitenruimte

Tuin
Achtertuin en voortuin
Voortuin
23 m²

Locatie

Ook jouw woning succesvol verkopen?

Neem dan contact op

Gratis waardebepaling