Maaswijkstraat 19

2586CA Den Haag
Verkocht

Omschrijving

Parterreliefhebbers opgelet!

Bent u op zoek naar de woning met het wauw effect, stop met zoeken, u heeft hem zojuist gevonden. Vanaf het moment dat u de woning binnenloopt bent u verliefd. De locatie des te meer. Slippertjes aan, schepjes mee en lopend naar het strand. De gezelligheid van winkels en horecagelegenheden in de directe nabijheid is de kers op de taart.

Aantrekkelijk gelegen nabij het strand van Scheveningen, Westbroekpark, Scheveningse Bosjes, de winkels van de Badhuisstraat, Keizerstraat en de Fred en de Franse en Duitse school.
Lees meer

Kenmerken

Overdracht

Aangeboden sinds
11 mei 2025
Status
Verkocht
Aanvaarding
In overleg

Bouw

Soort woning
Appartement
Soort appartement
Benedenwoning
Bouwjaar
1897
Soort dak
Plat dak

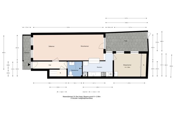
Oppervlakten en inhoud

Oppervlakte wonen
67 m²
Inhoud
275 m³

Indeling

Aantal kamers
2
Aantal slaapkamers
1
Aantal woonlagen
1 woonlaag
Gelegen op
1e woonlaag
Voorzieningen
Schuifpui

Energie

Energielabel
D
Isolatie
Gedeeltelijk dubbel glas
Verwarming
Cv-ketel
Warm water
Cv-ketel
Cv-ketel
, eigendom

Buitenruimte

Tuin
Achtertuin

Vereniging van Eigenaren

Inschrijving KvK
Ja
Jaarlijkse vergadering
Ja
Periodieke bijdrage
-
Reservefonds aanwezig
Ja
Onderhoudsplan
Ja
Opstalverzekering
Ja

Locatie

Ook jouw woning succesvol verkopen?

Neem dan contact op

Gratis waardebepaling