Mari Andriessenstraat 47

2552NN Den Haag
Verkocht

Omschrijving

Tuin liefhebbers opgelet!
In de gewilde wijk Houtwijk gelegen keurig onderhouden 3 kamer (mogelijkheid tot het creëren van een 4e kamer) benedenwoning met een zeer verrassende groene achtertuin. De woning is keurig onderhouden, heerlijk rustig gelegen en op loopafstand van winkelcentrum Houtwijk, scholen, park, speeltuin, Loosduinen. En circa tien minuten van het strand.

Kortom een woning welke zeker een bezichtiging waard is!
Lees meer

Kenmerken

Overdracht

Aangeboden sinds
16 oktober 2025
Status
Verkocht
Aanvaarding
In overleg

Bouw

Soort woning
Appartement
Soort appartement
Benedenwoning
Bouwjaar
1985

Oppervlakten en inhoud

Oppervlakte wonen
80 m²
Oppervlakte externe bergruimte
12 m²
Inhoud
300 m³

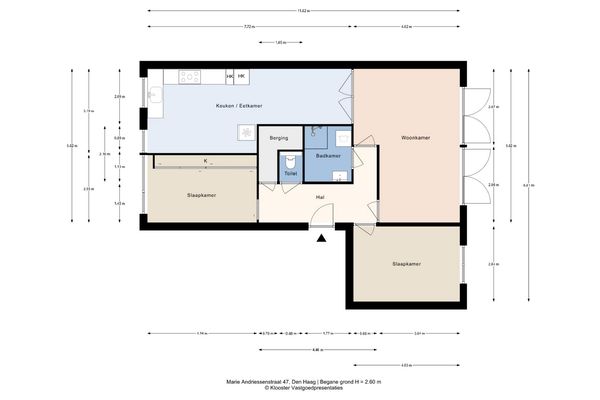
Indeling

Aantal kamers
3
Aantal slaapkamers
2
Aantal woonlagen
1 woonlaag
Gelegen op
1e woonlaag
Voorzieningen
Mechanische ventilatie en schuifpui

Energie

Energielabel
C
Isolatie
Dubbel glas
Verwarming
Cv-ketel
Warm water
Cv-ketel
Cv-ketel
, eigendom

Buitenruimte

Tuin
Achtertuin
Achtertuin
84 m² gelegen op het zuidwesten

Vereniging van Eigenaren

Inschrijving KvK
Ja
Jaarlijkse vergadering
Ja
Periodieke bijdrage
-
Reservefonds aanwezig
Ja
Onderhoudsplan
Ja
Opstalverzekering
Ja

Locatie

Ook jouw woning succesvol verkopen?

Neem dan contact op

Gratis waardebepaling