Mecklenburgplein 4a

2552RG Den Haag
Verkocht

Omschrijving

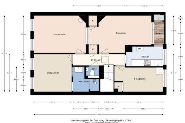
Dit ¾ kamer top appartement (2 slaapkamers) is basic doch netjes onderhouden en vraagt op enkele punten om aandacht. De woning is verder licht, ruim opgezet en heeft enorm veel potentie.
De woning is gelegen in een rustige woonstraat in het hart van het stadsdeel Loosduinen; zeer gunstig gesitueerd nabij divers winkelaanbod, openbaar vervoersverbindingen, uitvalswegen naar het rijkswegennet en circa op 10 minuten fietsafstand van het Ockenburgse Bos, De Uithof, Madestijn en haar plassen, de duinen en het strand.

Kortom een woning welke een bezichtiging waard is!
Lees meer

Kenmerken

Overdracht

Aangeboden sinds
31 juli 2025
Status
Verkocht
Aanvaarding
In overleg

Bouw

Soort woning
Appartement
Soort appartement
Portiekwoning
Bouwjaar
1925

Oppervlakten en inhoud

Oppervlakte wonen
75 m²
Oppervlakte gebouwgebonden buitenruimte
2 m²
Inhoud
265 m³

Indeling

Aantal kamers
3
Aantal slaapkamers
2
Aantal woonlagen
1 woonlaag
Gelegen op
3e woonlaag

Energie

Verwarming
Cv-ketel
Warm water
Cv-ketel
Cv-ketel
, eigendom

Vereniging van Eigenaren

Inschrijving KvK
Ja
Jaarlijkse vergadering
Ja
Periodieke bijdrage
-
Reservefonds aanwezig
Ja
Onderhoudsplan
Ja
Opstalverzekering
Ja

Locatie

Ook jouw woning succesvol verkopen?

Neem dan contact op

Gratis waardebepaling