Newtonplein 51A

2562JX Den Haag
Onder bod
Te koop
€ 250.000,- k.k.

Omschrijving

Zoek je een eigen plek op een centrale locatie, maar zonder het gevoel van inkijk van alle kanten? Dan is dit jouw kans.

Deze lichte bovenwoning ligt in een rustige straat in het populaire Valkenboskwartier en biedt vrij uitzicht op een groen park en speelplein. Hier woon je rustig, terwijl je binnen enkele minuten de levendigheid van de Weimarstraat en Fahrenheitstraat bereikt voor koffie, lunch, boodschappen of een borrel.

De woning op de eerste verdieping combineert karakter – met bouwjaar 1909 en hoge plafonds – met volop potentie en een indeling die goed aansluit bij een moderne levensstijl.

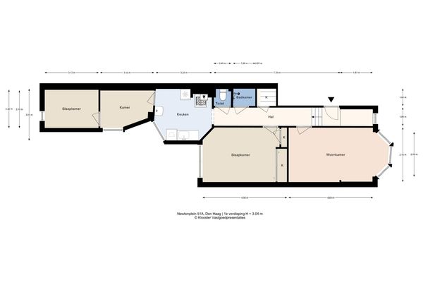
Indeling
Via de vaste trap bereik je de eerste verdieping. De hal geeft toegang tot de ruime woonkamer: een prettige leefruimte met hoge plafonds en grote ramen, waardoor het daglicht rijkelijk naar binnen valt. Overdag werk je hier comfortabel aan de eettafel met uitzicht op het groen en ’s avonds kom je tot rust in een lichte en sfeervolle woonkamer.

De master bedroom is ruim en licht en beschikt over dubbele beglazing en de karakteristieke hoge plafonds die zo kenmerkend zijn voor woningen uit deze periode.

Verder beschikt de woning over een separaat toilet en een aparte badkamer.

De keuken biedt de mogelijkheid om deze volledig naar eigen smaak te moderniseren — dé kans om hier jouw eigen stijl te realiseren en tegelijkertijd waarde toe te voegen aan de woning.

Aan de achterzijde bevinden zich twee kamers, waarvan de achterste bereikbaar is via de eerste. Ideaal als combinatie van slaapkamer met walk-in-closet, thuiswerkruimte of hobbykamer. Perfect voor wie hybride werkt of extra flexibiliteit zoekt.

Kortom, een woning met:
- Vrij uitzicht zonder directe inkijk
- Een centrale locatie met alle voorzieningen op loopafstand
- Hoge plafonds en veel lichtinval
- Flexibele indeling, ideaal voor thuiswerken
- Mogelijkheden om te moderniseren en waarde toe te voegen
- Een woning waar je direct comfortabel kunt wonen én die ruimte biedt om er echt jouw eigen plek van te maken.

Plan een bezichtiging en ervaar zelf hoe licht, rustig en prettig deze woning aanvoelt.
Lees meer

Kenmerken

Overdracht

Vraagprijs
€ 250.000 k.k.
Aangeboden sinds
8 maart 2026
Status
Onder bod
Aanvaarding
In overleg

Bouw

Soort woning
Appartement
Soort appartement
Portiekflat
Bouwjaar
1909
Soort dak
Zadeldak

Oppervlakten en inhoud

Oppervlakte wonen
69 m²
Inhoud
265 m³

Indeling

Aantal kamers
4
Aantal slaapkamers
3
Aantal woonlagen
1 woonlaag
Gelegen op
1e woonlaag

Energie

Energielabel
F
Verwarming
Cv-ketel
Warm water
Cv-ketel
Cv-ketel
Remeha (, eigendom)

Vereniging van Eigenaren

Inschrijving KvK
Ja
Jaarlijkse vergadering
Ja
Periodieke bijdrage
-
Reservefonds aanwezig
Ja
Onderhoudsplan
Ja
Opstalverzekering
Ja

Plattegronden

Locatie

Ellen

Interesse in deze woning?

Ellen

Vraag een bezichtiging aan of neem contact met ons op