Rembrandtkade 104

2282XC Rijswijk
Verkocht

Omschrijving

English version down below

Op zoek naar een ruim appartement met twee balkons in het bruisende Rijswijk? Dan is deze woning aan de Rembrandtkade 104 precies wat je zoekt! Dit appartement bestaat uit meerdere verdiepingen en biedt allerlei mogelijkheden voor jonge gezinnen, starters en ouderen die op zoek zijn naar een comfortabele woonomgeving.

De ligging aan de Rembrandtkade in Oud Rijswijk is ideaal voor wie op zoek is naar rust en ruimte, maar toch dicht bij alle voorzieningen wil wonen. In de omgeving vind je diverse winkels, talloze gezellige restaurants en scholen, waardoor dit de perfecte locatie is voor verschillende doelgroepen. Ook zijn er de nodige scholen in de nabije omgeving. En voor recreatie en sport hoef je niet lang te zoeken. Alles wat je nodig hebt binnen handbereik.

De woning beschikt over een recent vernieuwde badkamer, met modern sanitair en is volledig opgefrist met nieuw glasvliesbehang en frisse verflagen. De plafonds zijn deels strak gestukt en deels voorzien van trendy inbouw spots. Tevens zijn er nog een aantal traditionele elementen zichtbaar, zoals glas in lood ramen en deuren met klassieke patronen.

Kortom, dit ruime appartement aan de Rembrandtkade 104 in Rijswijk heeft alles wat je zoekt in een ideale woonsituatie. Ben jij klaar om hier je nieuwe thuis van te maken? Neem dan snel contact met ons op voor meer informatie en een bezichtiging!

Indeling
Op de begane grond treffen we de entree, na binnenkomst treffen we een ontvangsthal met meterkast. Aan het einde van de gang, is de trap naar de eerste verdieping. De wanden langs de trap zijn deels voorzien van marmeren tegels.
Aangekomen op de eerste verdieping treffen we een overloop. Op de overloop is de eerste toiletruimte, met staand toilet. Het plafond op de overloop heeft een gestukt plafond met inbouwspots. Ook de wanden op de overloop en het trapgat zijn gestukt en deels met marmer betegeld.

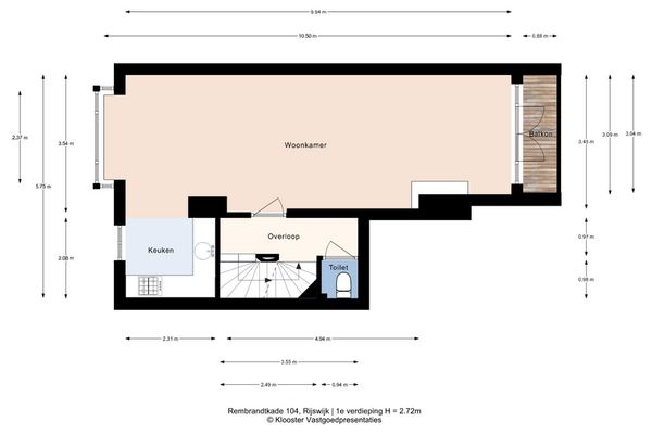
Vanaf de overloop is er toegang tot de woonkamer. Het is een doorzon woonkamer met aan de voorzijde een grote raampartij. Aan de achterzijde is er toegang tot een balkon, middels 2 openslaande deuren. Het balkon ligt op het Zuidwesten. Het is een inpandig balkon, welke nog is gerenoveerd.
De gehele verdieping is voorzien van glasvliesbehang en is geheel gesaust, de buitenhoeken zijn afgewerkt met houten profielen. Aan de achterzijde is een openhaard, welke nieuw is afgewerkt.
Ook is aan de achterzijde van de woonkamer een designradiator geplaatst.
De achterzijde is voorzien van dubbelglas, de voorzijde is voorzien van enkelglas.

Vanuit de woonkamer is er toegang tot de openkeuken, welke aan de voorzijde van de woning is gesitueerd. De keuken is voorzien van 4-pits gasstel, oven, afzuigkap, nieuwe stopcontacten en inbouwspots.

Vanaf de overloop is er een trap naar de tweede verdieping. Ook hier is een deel van de wanden langs de trap bekleed met marmeren tegels.
Op de overloop op de tweede verdieping treffen we het tweede toiletruimte, welke is voorzien van een staand toilet.

De overloop op de tweede verdieping heeft ook een gestukt plafond met inbouwspots.
Vanaf de overloop is er toegang tot een slaapkamer aan de achterzijde van de woning. De slaapkamer is zeer ruim en heeft twee openslaande deuren naar een balkon. Ook dit balkon is inpandig en ligt op het Zuidwesten. De achterpui is nieuw en voorzien van dubbelglas. Ook deze slaapkamer is voorzien van glasvliesbehang, is volledig gesaust en voorzien van houten profielen op de buitenhoeken.
De tweede slaapkamer is aan de voorzijde van de woning en heeft een dakkapel. Deze slaapkamer is ook zeer ruim. In een vaste kast, op de slaapkamer, is de CV geplaatst. De CV is van 2006 en is in eigendom. De CV wordt jaarlijks onderhouden.

Naast slaapkamer 2 is de badkamer geplaatst. De badkamer is nieuw geïnstalleerd en is voorzien van een douchecabine, wasbak met meubel, verlichte spiegel, luxe kraan, designradiator, afzuiging en een wasmachine aansluiting. De badkamer heeft ook een ( deel van de) dakkapel en is gesitueerd aan de voorzijde van de woning.

Vanaf de overloop van de tweede verdieping is er een trap naar de zolder. Op de zolder is een wasmachine aansluiting aanwezig. Er is een openslaande deur naar het dak, alwaar mogelijkheden zijn om een dakterras te realiseren.
Lees meer

Kenmerken

Overdracht

Aangeboden sinds
15 juni 2025
Status
Verkocht
Aanvaarding
In overleg

Bouw

Soort woning
Appartement
Soort appartement
Bovenwoning
Bouwjaar
1935
Soort dak
Plat dak

Oppervlakten en inhoud

Oppervlakte wonen
108 m²
Oppervlakte overige inpandige ruimte
5 m²
Oppervlakte gebouwgebonden buitenruimte
5 m²
Inhoud
345 m³

Indeling

Aantal kamers
3
Aantal slaapkamers
2
Aantal woonlagen
1 woonlaag
Gelegen op
1e woonlaag

Energie

Energielabel
D
Isolatie
Gedeeltelijk dubbel glas
Verwarming
Cv-ketel en open haard
Warm water
Cv-ketel
Cv-ketel
HR 107 (, eigendom)

Vereniging van Eigenaren

Inschrijving KvK
Ja
Jaarlijkse vergadering
Ja
Periodieke bijdrage
-
Reservefonds aanwezig
Ja
Onderhoudsplan
Ja
Opstalverzekering
Ja

Locatie

Ook jouw woning succesvol verkopen?

Neem dan contact op

Gratis waardebepaling