Schelfhoutstraat 1

2526XP Den Haag
Verkocht

Omschrijving

Kindvriendelijk, autoluw, geweldige architectuur, centraal, nabij centrum, zonder kosten te betrekken, goed onderhouden, ruime hoekeengezinswoning.
Aan de Rand van het centrum ligt "Het Fort", een locatie waarbij, eind jaren 90, samengevoegde woningen geheel gemoderniseerd zijn. De centrale locatie, kindvriendelijke opstelling, autoluwe opzet zijn absoluut ideaal te noemen. Nostalgisch wonen in een nieuw jasje!

Deze 5/6 kamer eengezinswoning kunt u zonder opknapkosten betrekken.
Lees meer

Kenmerken

Overdracht

Aangeboden sinds
10 augustus 2025
Status
Verkocht
Aanvaarding
In overleg

Bouw

Soort woning
Woonhuis
Soort woonhuis
Eengezins woning
Type woonhuis
Hoekwoning
Bouwjaar
1899
Soort dak
Zadeldak

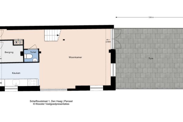
Oppervlakten en inhoud

Oppervlakte wonen
106 m²
Oppervlakte overige inpandige ruimte
4 m²
Inhoud
400 m³

Indeling

Aantal kamers
5
Aantal slaapkamers
4
Aantal woonlagen
1 woonlaag
Voorzieningen
Mechanische ventilatie

Energie

Energielabel
E
Isolatie
Dubbel glas
Verwarming
Cv-ketel
Warm water
Cv-ketel
Cv-ketel
, eigendom

Buitenruimte

Tuin
Achtertuin
Achtertuin
28 m² gelegen op het zuidwesten

Bergruimte

Schuur/berging
Inpandig
Voorzieningen
Voorzien van elektra

Locatie

Ook jouw woning succesvol verkopen?

Neem dan contact op

Gratis waardebepaling