Van Mierisstraat 28

2526NS Den Haag
Verkocht

Omschrijving

Kopers opgelet!
Bent u op zoek naar een INSTAPKLARE benedenwoning op loopafstand van het hart van Den haag? Dan bent u hier aan het juiste adres!
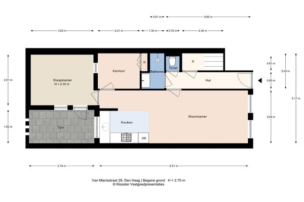
In 2021 inpandig compleet gerenoveerde 3 kamer benedenwoning (52m²) met tuin. De woning is o.a. voorzien van een ruime woonkamer met een luxe open keuken voorzien van inbouwapparatuur, 2 slaapkamers en een moderne badkamer. Daarnaast heeft de woning vernieuwd leidingwerk, centrale verwarming met radiatoren, fraai stucwerk en schilderwerk, kozijnen met dubbel glas en een fraaie parketvloer. De woning is gelegen in een rustige straat met gunstige ligging t.o.v. de Haagse binnenstad (loopafstand), openbaar vervoer, Hollands Spoor, Centraal station, Scheveningen, Haagsche Markt en uitvalswegen.
Lees meer

Kenmerken

Overdracht

Aangeboden sinds
4 juni 2025
Status
Verkocht
Aanvaarding
In overleg

Bouw

Soort woning
Appartement
Soort appartement
Benedenwoning
Bouwjaar
1899

Oppervlakten en inhoud

Oppervlakte wonen
52 m²
Inhoud
202 m³

Indeling

Aantal kamers
3
Aantal slaapkamers
2
Aantal woonlagen
1 woonlaag
Gelegen op
1e woonlaag
Voorzieningen
Mechanische ventilatie en schuifpui

Energie

Energielabel
C
Isolatie
Dubbel glas
Verwarming
Cv-ketel
Warm water
Cv-ketel
Cv-ketel
, eigendom

Buitenruimte

Tuin
Plaats
Plaats
7 m²

Vereniging van Eigenaren

Inschrijving KvK
Ja
Jaarlijkse vergadering
Ja
Periodieke bijdrage
-
Reservefonds aanwezig
Ja
Onderhoudsplan
Ja
Opstalverzekering
Ja

Locatie

Ook jouw woning succesvol verkopen?

Neem dan contact op

Gratis waardebepaling